戸建リノベーション:暮らしに寄り添うペット対応の三世帯改修

| 工事箇所 | リビング ダイニング キッチン 浴室 洗面 トイレ 寝室 WIC |
|---|
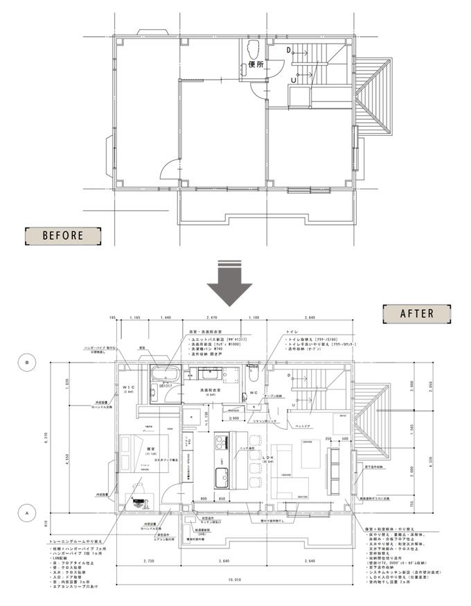
実家へ引っ越し親と一緒に住むにあたり、お互いに気を使わなくていいよう水回り設備を増設、家族が過ごしやすいよう間取りを変更したい。とのご依頼を頂きました。
間取り

LDK

和室と寝室を一部屋にしたLDKはグレージュ×ブラックでコーディネートし落ち着いた雰囲気のお部屋に仕上がりました。対面キッチンには手元隠しの造作壁を起こし、カウンターを取り付けました。カウンター前には調味料をしまえるニッチ収納を設け、両サイドにはコンセントを設置し充電もできる様になっています。猫ちゃんが自由に行き来できるようつけたくぐり戸はすぐに使い始めてくれたそうで安心しました!
壁掛けTV用の造作壁はタイル調のアクセントクロスを貼り、ダウンライトで照らすことで高級感とお部屋の顔として存在感を出しました。
造作壁の裏は収納スペースとなっておりTV周りの機器を一括収納できるようになっており、収納不足をカバーしています。壁の後ろにある出窓は猫ちゃんの特等席です。
壁掛けTV用の造作壁はタイル調のアクセントクロスを貼り、ダウンライトで照らすことで高級感とお部屋の顔として存在感を出しました。
造作壁の裏は収納スペースとなっておりTV周りの機器を一括収納できるようになっており、収納不足をカバーしています。壁の後ろにある出窓は猫ちゃんの特等席です。
Before
Before



Wet area

トイレと手洗い器しかなかった2階に浴室と洗面脱衣室を増設しました。戸建てのお風呂としてはコンパクトではありますが、時間帯を気にせずお風呂に入ることができる様になりました。
洗面脱衣室にはちょっと大きめの洗面化粧台を設置し、浴室入口と化粧台の間に収納を配置しました。入口横に配置することでタオルなどを取りやすくしています。
便器はお掃除がラクになるアラウーノを採用、専用カウンターで手洗付きながらにスッキリ納めました。岩石が並ぶアクセントクロスは知的好奇心をくすぐります!
洗面脱衣室にはちょっと大きめの洗面化粧台を設置し、浴室入口と化粧台の間に収納を配置しました。入口横に配置することでタオルなどを取りやすくしています。
便器はお掃除がラクになるアラウーノを採用、専用カウンターで手洗付きながらにスッキリ納めました。岩石が並ぶアクセントクロスは知的好奇心をくすぐります!
Before
Before


Bedroom / Walk in closet

元はトレーニングルームだったお部屋を寝室へ改装しました。落ち着いた雰囲気になるよう貼ったモルタル調の床材は奥様にも気に入っていただけました!
寝室の奥にはちょっとしたウォークインクローゼットも設置してあります。
寝室の奥にはちょっとしたウォークインクローゼットも設置してあります。
Before
Before







